1
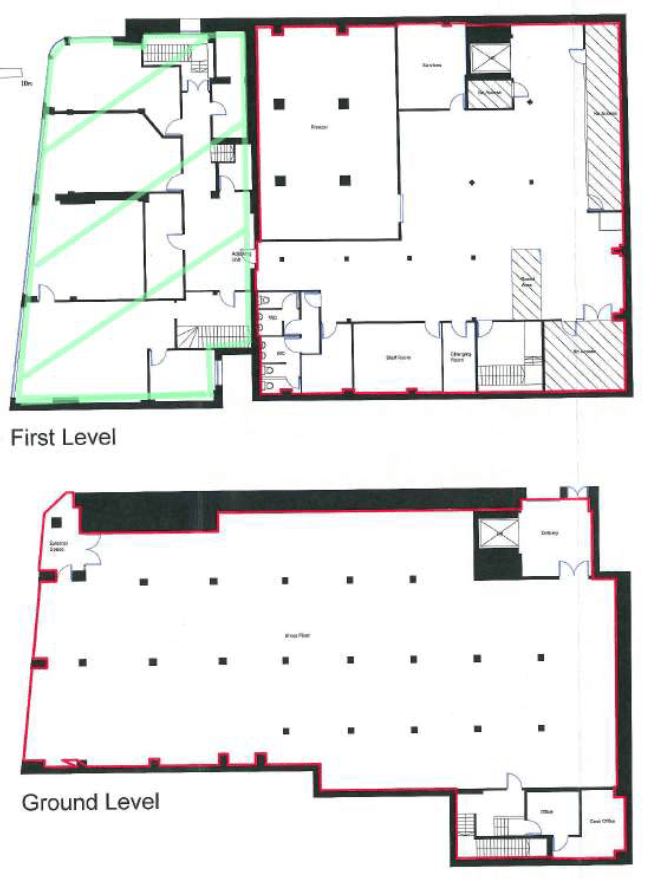
Tottenham, 524-528 High Road, N17 9SX
524-528 High Road, Tottenham, N17 9SX
Download Brochure
Enquire Now
If you need assistance, please fill in our enquiry form and a member of the team will be in touch shortly. Alternatively, feel free to contact one of our offices directly using the details below.
Description
Former branch of Iceland situated on busy Tottenham High Road close to the junction with Bruce Grove - adjoining Poundland with other nearby occupiers including Savers, McDonalds, Asda, Specsavers , Costa.